home
architektur
design
artwork
profil
kontakt
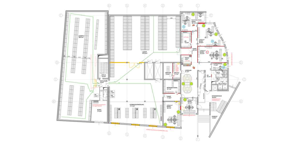
Studie Novomed
Machbarkeitsstudie für die Gebäudenutzung.
Standort
1030 Wien
Auftraggeber
Novomed Handels-GesmbH
Leistung
Studie
Kategorie
Büro | Interior Design
Status
Konzept
Fläche (ca.)
4.350 m²
Datum
2023
zurück